MY BOX [ 自由な箱の家 ]

暮らしに合わせて
間取りを変化させる家

無駄を省いたシンプルな設計で、
暮らしに合わせて自在に
間取りを変化させられる家です。

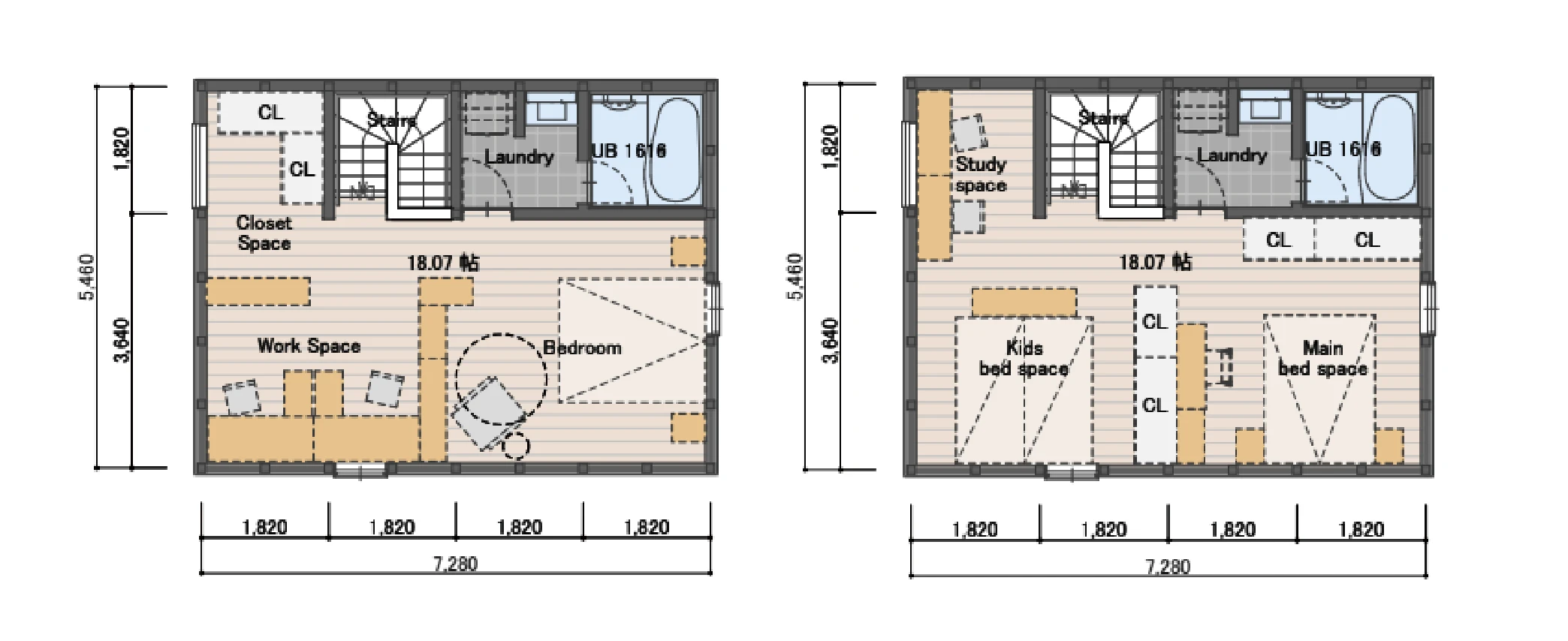
2Fは広々とした空間で、
家具やカーテンを使って気軽に
模様替えのように使い方を
アレンジ可能。
軒を出さないBOX型の外観は
スタイリッシュで、昼と夜で
大きく印象が変わります。

コンパクトながら
広がりを感じる住まいが、あなたの
ライフスタイルを彩ります。

ライフスタイルに
合わせて変化

無駄を削ぎ落とした空間設計で、その時々の暮らし方に合わせて間取りを変化させることができる家です。
2Fは壁を取り払った広大な空間となっており、家具やカーテンを使って、模様替えをする感覚で自在に間取りを変更することが可能です。

窓のデザイン

アクセント窓という新しい考え方。
シンプルな壁面に大型のスクエア窓を配置することで、建物に様々な表情を生み出すことができます。窓をキャンバスに見立てて、そこから見える風景を楽しんでください。

豊富な種類から
厳選した建材

  • 窓とつながる窓辺が、
    想像力をかき立てる

  • ナチュラルテイストで
    高耐久なフローリング

  • こだわりの質感が特徴の
    室内ドア

  • マットな質感で
    スタイリッシュな
    モルタル調仕上げ

  • フローリングと
    同樹種・同色の階段

  • シャープな影で
    魅せる

play movie

自由な箱の家のデザインを
バーチャルで体感できる
VRモデルハウス

従来の家の基礎 / 自由な箱の家の基礎

最上級の耐震性能

耐震等級とは、地震に対する建物の強さを表す等級のこと。「自由な箱の家」は最も耐震性の高い「耐震等級3」を基準としており、震度6強~7の地震でも軽微な補修で住み続けられる耐震性能を確保しています。

自由な箱の家の耐震等級

構造計算(許容応力度計算)が
家の強さを証明します

より強度を確保できる「許容応力度計算」

同じ耐震等級でも計算方法によって強度が異なることをご存知ですか?「狭小の」の構造計算は、より強度を確保できる「許容応力度計算」を採用。より安心な住まいをお届けします。

国内トップクラスの断熱性能

一年中Tシャツで過ごせる、快適な暮らし。

自由な箱の家の断熱性能

自由な箱の家の断熱性能(UA値)

0.46~0.18w/m2/k

断熱性能が高い家を提供

断熱性能はUA値で表されています。UA値とは、家が外気温にどれだけ影響されるのかの指標で、数値が低いほど断熱性能が良いことになります。当社では、どの季節でも快適に暮らせるUA値0.46以下の家を提供しています。

高い気密性によって実現できる
健康な住まいづくり

住宅の隙間をできる限り減らして気密性を高め、高性能の換気システムによって室内の快適できれいな空気を効率的に維持し、健康的な室内環境をつくり出します。

自由な箱の家の耐震等級

気密性が高い家は
外気温・風・害虫の侵入を防ぎます。

自由な箱の家の耐震等級

高性能換気システムで
一年中新鮮な空気

高い熱交換機能をもつ第一種換気は室温を失うことなく一年中新鮮な空気が家の中に供給されます。

一般的な住宅 / 自由な箱の家

さあ、具体的な
あなたの理想のプランを
設計していきましょう

ライフスタイルに
合わせて選べる
4種類

❶スタンダード

    • 無駄を省いたシンプルな設計で、暮らしに合わせて自在に間取りを変えられる家。軒を出さないBOX型のスタイリッシュな外観は、昼と夜で大きく印象が変わります。

    • 無駄を省いたシンプルな設計で、暮らしに合わせて自在に間取りを変えられる家。軒を出さないBOX型のスタイリッシュな外観は、昼と夜で大きく印象が変わります。

    • 無駄を省いたシンプルな設計で、暮らしに合わせて自在に間取りを変えられる家。軒を出さないBOX型のスタイリッシュな外観は、昼と夜で大きく印象が変わります。

    • 無駄を省いたシンプルな設計で、暮らしに合わせて自在に間取りを変えられる家。軒を出さないBOX型のスタイリッシュな外観は、昼と夜で大きく印象が変わります。

    さらに、あなたらしい
    理想の間取りをご提案いたします

    ご相談予約

    まずはご相談予約の
    3つのステップ

    土地をお探しの方の
    ご相談も承ります

    お住まいのこと
    なんでもご相談ください!!

    ご相談予約